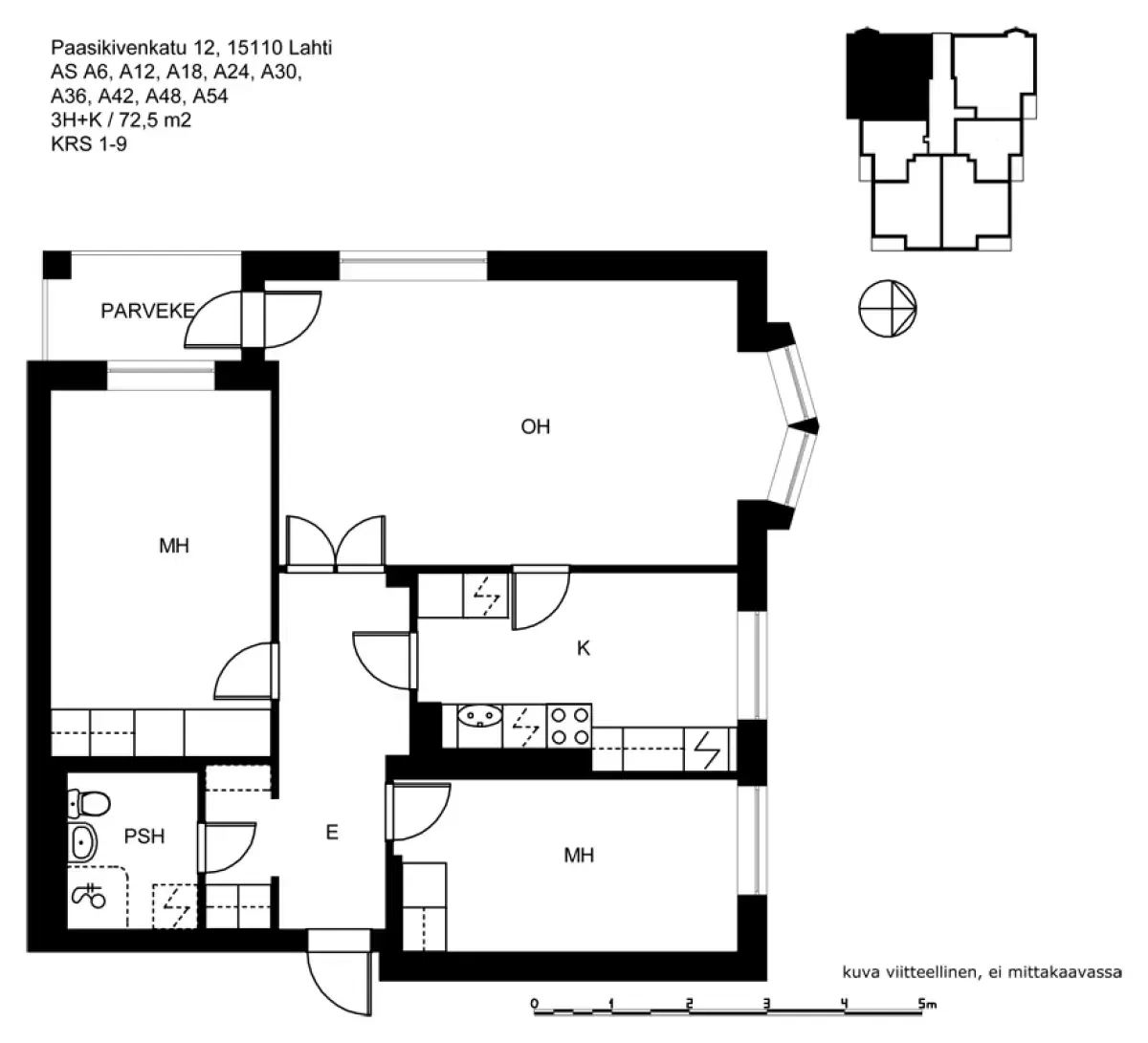
Paasikivenkatu 6, 8, 10, 12, 14, 16, 20, Lahti — 954 €/kk | Kotireitti | Kotireitti