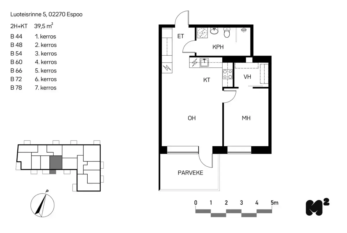
Luoteisrinne 5, Espoo — 865 €/kk | Kotireitti | Kotireitti