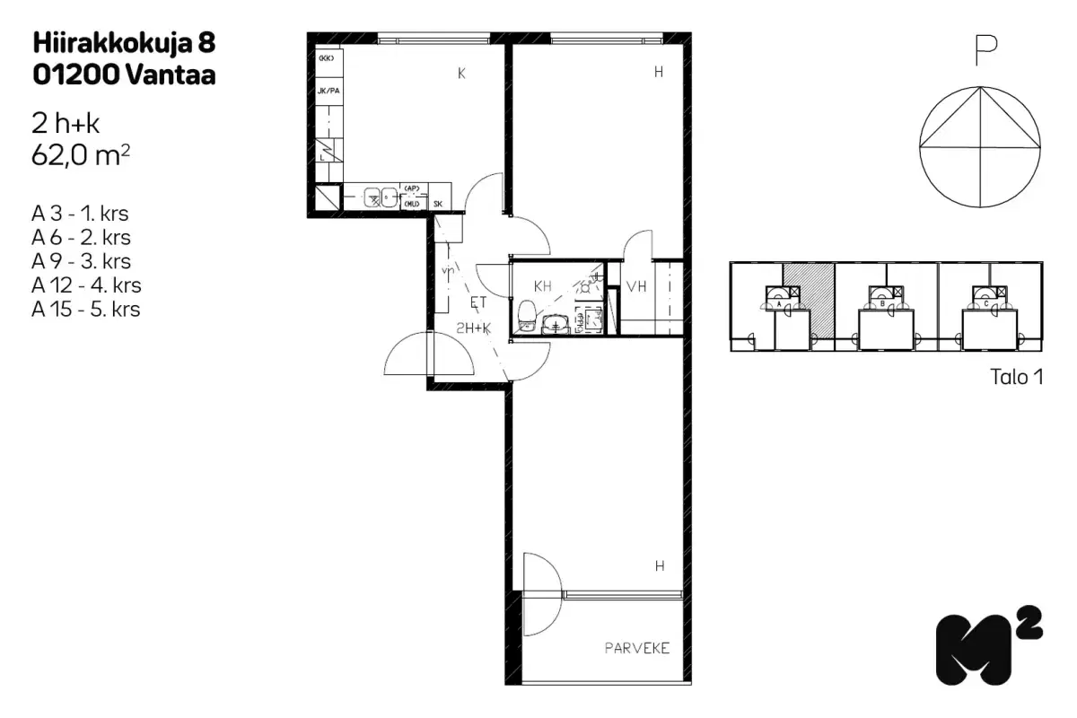
Hiirakkokuja 8, Vantaa — 854 €/kk | Kotireitti | Kotireitti