
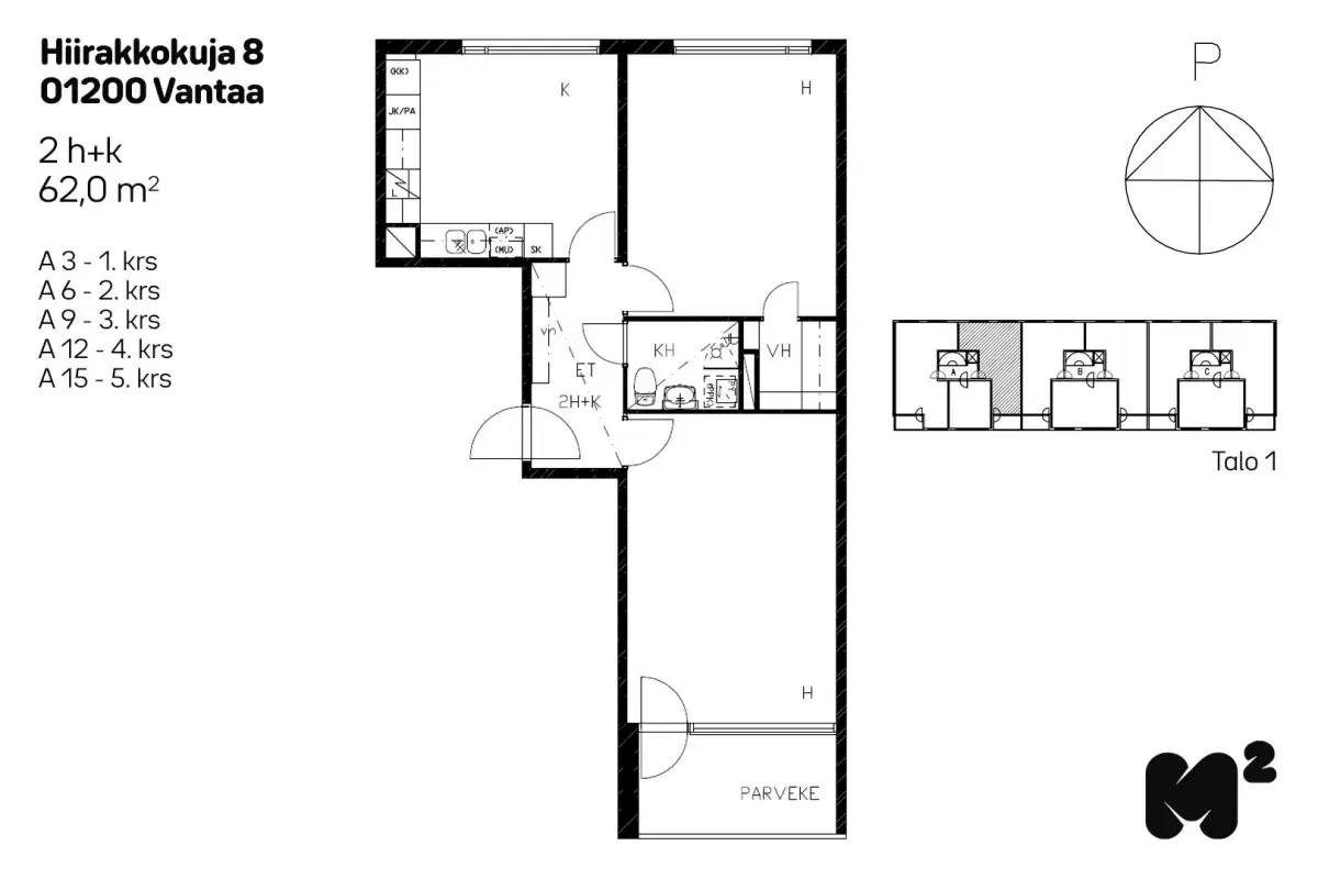
Hiirakkokuja 8 on 1970-luvulla valmistunut viisikerroksinen hissillinen talo, jonka asunnot on remontoitu vuonna 2015. Kiinteistössä on yhteensä 75 asuntoa ja autopaikkoja on vuokrattavissa 25. Autopaikat ovat lämmityspistokkeellisia ulkopaikkoja.Remontoitujen asuntojen värimaailma on vaalea, ja täydellisen perusparannuksen kokeneet keittiöt ovat raikkaan valkoiset, jota tehostaa työtasojen lämmin tammen sävy.Asunnoissa riittää luonnonvaloa isojen ikkunapintojen ansiosta, ja pohjaratkaisut ovat selkeitä 70-luvun tyyliin. Lasitetut parvekkeet kaksioissa ja kolmioissa tuovat asuntoihin lisää tilan tuntua. Kaksioista ja kolmioista löytyy myös vaatehuoneet säilytystä ja järjestystä helpottamaan.Talossa on hissi, talosauna, kuivaushuone, kerhotila, ulkoiluvälinevarasto sekä asukkaiden irtaimistovarastot. Viikoittainen saunavuoro on varattavissa omaan käyttöön 15 € kuukausimaksulla.Talo sijaitsee päättyvän kadun päässä lähellä Hakunilan alueen palveluita, julkisen liikenteen pysäkkejä sekä monipuolisia ulkoilu- ja urheilumahdollisuuksia. Sijainti on oivallinen esimerkiksi koiranomistajalle, sillä lemmikit ovat kaikkiin M2-Kotien asuntoihin lämpimästi tervetulleita! Hakunila asuinalueenaVuoden kaupunginosaksi vuonna 2015 valitussa Hakunilassa asut monipuolisten palveluiden ja harrastusmahdollisuuksien ympäröimänä. Alueella on useita päiväkoteja, eriasteisia kouluja, päivittäistavarakauppoja ja muita palveluita, kuten sosiaali- ja terveyskeskus sekä neuvola.Hyvät yhteydet pääväylille ja kattava julkinen liikenne takaavat helpon liikkumisen. Lisäksi suunnitteilla on pikaraitiotie Tikkurilan suuntaan. Kohde sijaitsee HSL:n vyöhykkeellä C.Hakunilassa sijaitsee suosittu urheilupuisto, josta löytyvät monipuoliset puitteet liikkumiseen: hiihtoladut ja -stadion, uimahalli, kuntosali, tekonurmikenttä, skeittipuisto, lenkkipolkuja ja paljon muuta. Suurhakunilan alueella sijaitsee myös suosittu ulkoilualue Kuusijärvi, joka tarjoaa mahdollisuuden uintiin, ulkoiluun ja saunomiseen savusaunassa. Lähellä sijaitsevat myös Sipoonkorven kansallispuisto sekä Håkansbölen kartanoalue. Hiirakkokuja 8:n asunnotHiirakkokuja 8 tarjoaa monipuolisia asumisratkaisuja eri elämäntilanteisiin sopien. Kiinteistössä on yhteensä 75 asuntoa, joista 10 asuntoa on 31 m² kokoisia yksiöitä, 55 asuntoa 48–62 m² kokoisia kaksioita ja 10 asuntoa 79 m² kokoisia kolmioita. Talosta löytyy koteja niin yksin asuvien, pariskuntien kuin lapsiperheiden tarpeisiin. Myös lemmikit ovat tervetulleita.Vesi ja DNA:n 50 Mbit/s laajakaista sisältyvät vuokraan.