
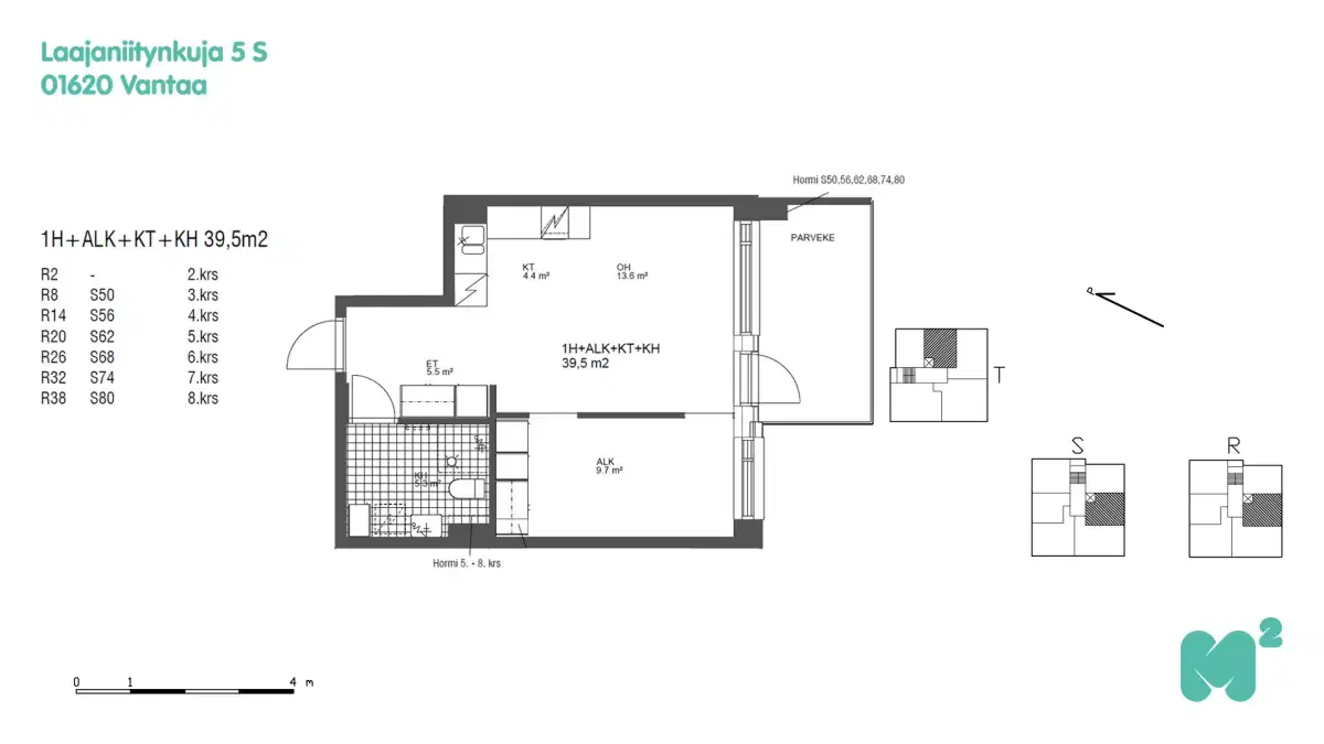
Länsi-Vantaalla Martinlaaksossa, rauhallisella alueella Kehäradan varrella, hyvien liikenneyhteyksien päässä sijaitseva Laajaniitynkuja 5 koostuu kuudesta vuokratalosta, joista viimeisin, A-talo valmistu1 syyskuussa 2023. Laajaniitynkujan talot R, S ja T ovat valmistuneet vuosina ja uusimmat A, B ja C vuosina . Kaikissa Laajaniitynkujan taloissa on erinomaiset yhteistilat. Vuokraan sisältyy pesutuvan sekä kuivaushuoneen lisäksi taloissa sijaitsevat asukkaiden käyttöön suunnitellut asukastilat. Asukkailla on käytössään myös asuntokohtaiset irtaimistovarastot sekä erillinen ulkoiluväline- ja lastenvaunuvarasto. Laajaniitynkujan 5:n talojen yhteistilat ja A-talossa sijaitseva erikseen varattava vieraille suunnattu yksiö on kaikkien asukkaiden käytössä. A-, B- ja C-talotA-talon alimmassa kerroksessa on yhteisasumiseen tarkoitettuja isompia kolmen ja neljän huoneen asuntoja. Asunnoissa voi asua esimerkiksi perheenjäsenten, sukulaisten tai ystävien kesken. Uudenlaiset yhteisasunnot vuokrataan kolmen ja neljän henkilön porukoille ja jokaiselle asukkaalle tehdään oma vuokrasopimus. Yhdessä-asuntoja voi hakea erillisellä hakemuslomakkeella. Tutustu asuntoihin ja jätä hakemus A-talossa on myös erillinen yksiö, jota asukkaat voivat varata esimerkiksi yöpyville vierailleen. Yksiö on sisustettu hotellimaiseen tyylin ja siellä on sänky, kylpyhuone sekä keittiö ruoanlaittoa varten. Yksiön varaus tapahtuu sähköisen varausjärjestelmän kautta. Vierasyksiössä on varausmaksu. Majoittujan tulee tuoda mukanaan omat petivaatteet ja pyyhkeet. A-talon ylimmässä kerroksessa sijaitsee asukkaiden yhteiskäyttöön suunnitellut asukastilat ja talosaunat, joista on hulppeat näkymät. Talon ensimmäisessä kerroksessa on myös kaksi etätyötilaa, joita voi varata omaan käyttöön. Talon aulassa on Postin noutopiste, josta voi hakea paketteja ja sinne voi myös palauttaa verkko-ostoksia ja lähettää OmaPostissa valmiiksi maksettuja lähetyksiä. Alimmassa kerroksessa on myös oma säilytystila pyörille. B-talon alakerrassa on vuonna 2023 auennut liikuntapainotteinen Pilke-päiväkoti Vauhtiniitty. Talossa sijaitseva leikkitila ja sisäpihan leikkialue on asukkaiden käytössä päiväkodin ollessa kiinni. C-talosta löytyy erillinen kuraeteinen pesupaikkoineen, missä esimerkiksi pyörä tai lemmikin tassut on helppo pestä ulkoilun jälkeen. C-talossa on myös verstas asukkaiden yhteiseen käyttöön. Asukkaat voivat vuokrata autopaikan pysäköintirakennuksesta tai pihalta. Autopaikkoja on saatavilla rajoitetusti. Autopaikat arvotaan, jos autonpaikan hakijoita on enemmän kuin vapaana olevia paikkoja. Tupakointi on kielletty kaikissa A-, B- ja C-talojen sisä- ja ulkotiloissa. Taloihin on varallisuusrajat. R-, S-, ja T-talotR-, S-, ja T-taloissa on jokaisessa oma talosauna. Lisäksi R- ja S-talojen välissä on monitoimitila, jossa voi järjestää esimerkiksi lasten syntymäpäivä tai muita juhlia. Asukkaat voivat vuokrata autopaikan pysäköintirakennuksesta tai pihalta. Autopaikkoja on saatavilla rajoitetusti. R-, S- ja T- talojen sisäpihalta löytyy erikseen merkitty tupakointipaikka. Taloihin on varallisuusrajat. Martinlaakso asuinalueenaMartinlaakso on urbaani asuinalue hyvien palveluiden, liikenneyhteyksien sekä harrastusmahdollisuuksien ympäröimänä. Kävelyetäisyydellä ovat niin päiväkodit, koulut ja päivittäistavarakaupat kuin Martinlaakson uudehko ostoskeskus, kirjasto, terveysasema, uimahalli ja kulttuuritalo Martinus. Martinlaaksosta löydät myös vehreää ja luonnonläheistä ulkoilumaastoa. Lapsiystävällisessä Martinlaaksossa sijaitsee useita päiväkoteja ja kouluja. Varhaiskasvatusta ja perusopetusta on tarjolla hyvin suomeksi ja ruotsiksi, myös lukiot löytyvät molemmilla kielillä. Ammatillista koulutusta tarjoaa Kauppiaitten kauppaoppilaitos Mercuria. Martinlaaksosta löytyy myös nuorisotiloja. Martinlaakso on täynnä viheralueita ja puistoja. Lattiat ovat helppohoitoista vinyylilankkua. Keittiö on varustettu keraamisella liedellä ja astianpesukoneella. Keittiön vakiovarusteena on jääpakastinkaappi. Kylpyhuoneessa on tyylikäs keraaminen laatoitus ja tilaa pyykinpesukoneelle sekä kuivausrummulle.Asumisen mukavuutta arkeen ja lisää lisäneliöitä tuo lasitettu parveke, joka suuntautuu kaakkoon ja lounaaseen. Ikkunat ovat kaakkoon. Asunnon ikkunoissa ja ikkunaovissa on sälekaihtimet.Vuokraan sisältyy 50 Mb/s internet-yhteys. Vesimaksuennakko on 20 €/hlö/kk ja maksut tasataan kaksi kertaa vuodessa kulutuksen mukaan. Saunavuorot ovat varattavissa sähköisen varausjärjestelmän kautta. Saunavuoro maksaa 5 €/kerta.